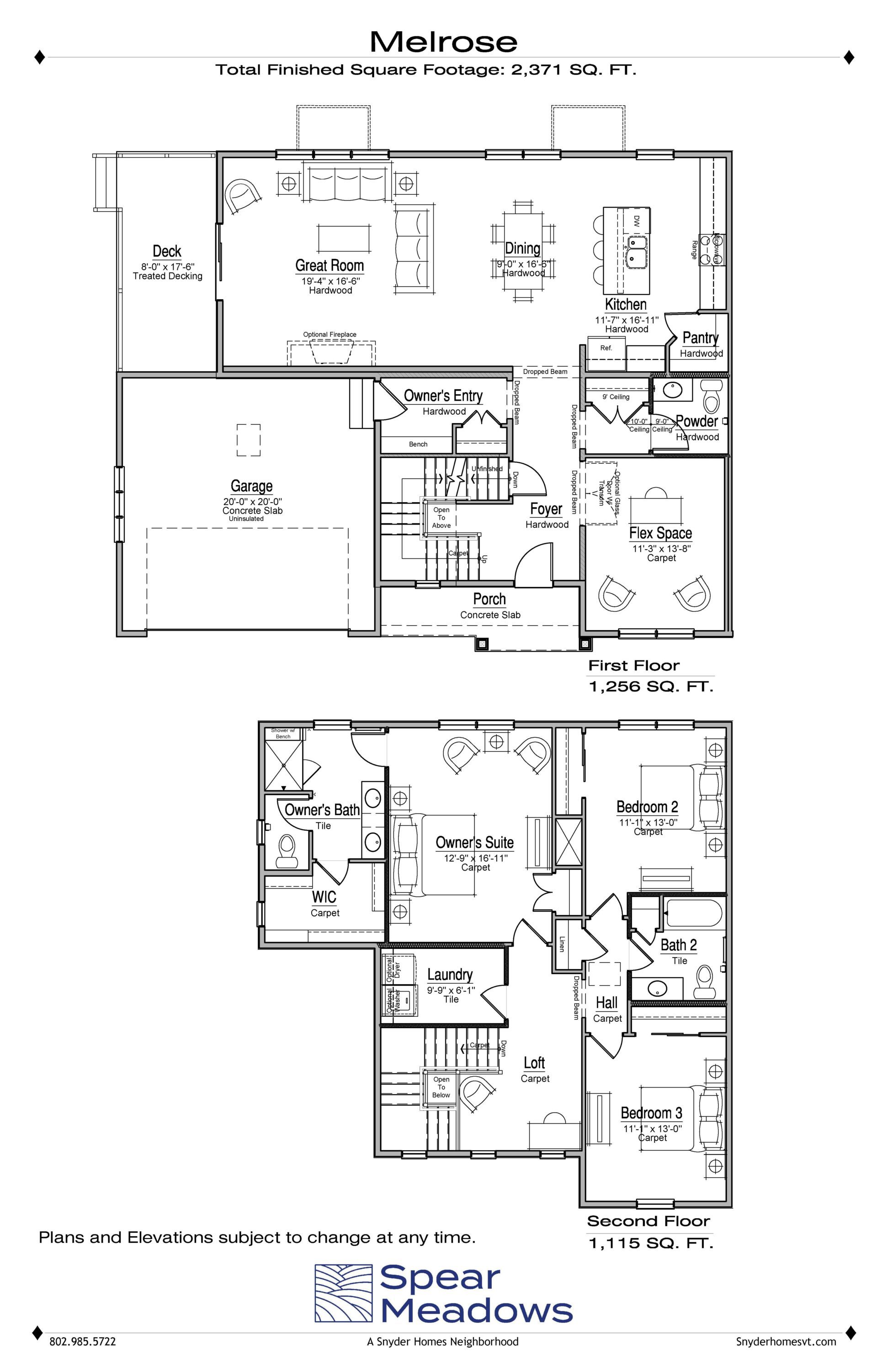
Melrose
Townhomes
3
Beds
2.5
Baths
2,371
Sqft
Starting at $798,000
