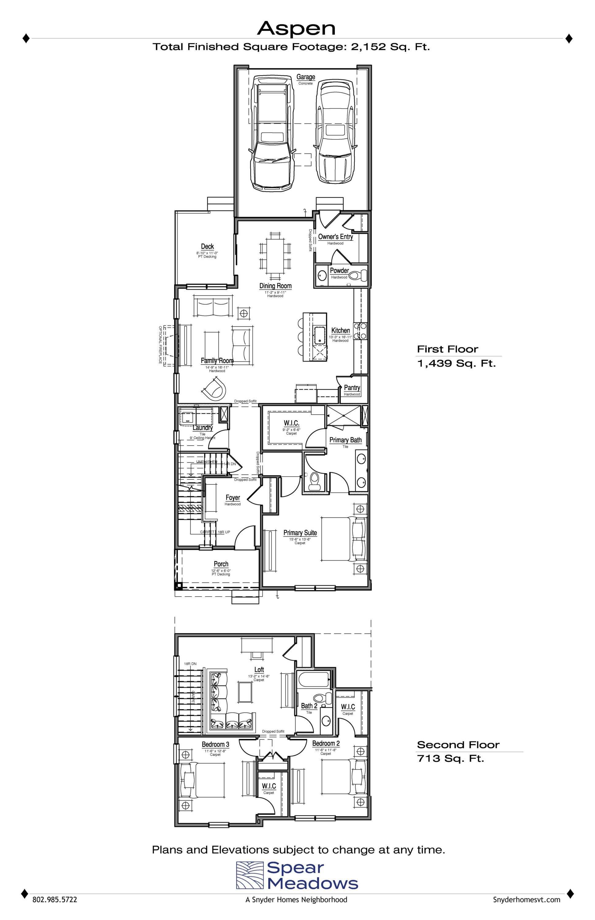
About Aspen
The Aspen offers 2,152 sq. ft. of well-designed living space with a layout that balances openness and privacy. The first floor features an inviting open-concept family room, dining area, and kitchen, complete with a center island, walk-in pantry, and easy access to the rear deck—ideal for entertaining and everyday living. A first-floor primary suite provides comfort and convenience with a private bath and walk-in closet, while a powder room, laundry area, welcoming front porch, and two-car garage add everyday functionality.
Upstairs, the second floor includes two additional bedrooms, a full bath, and a flexible loft space perfect for a home office, media area, or playroom.
Plans
