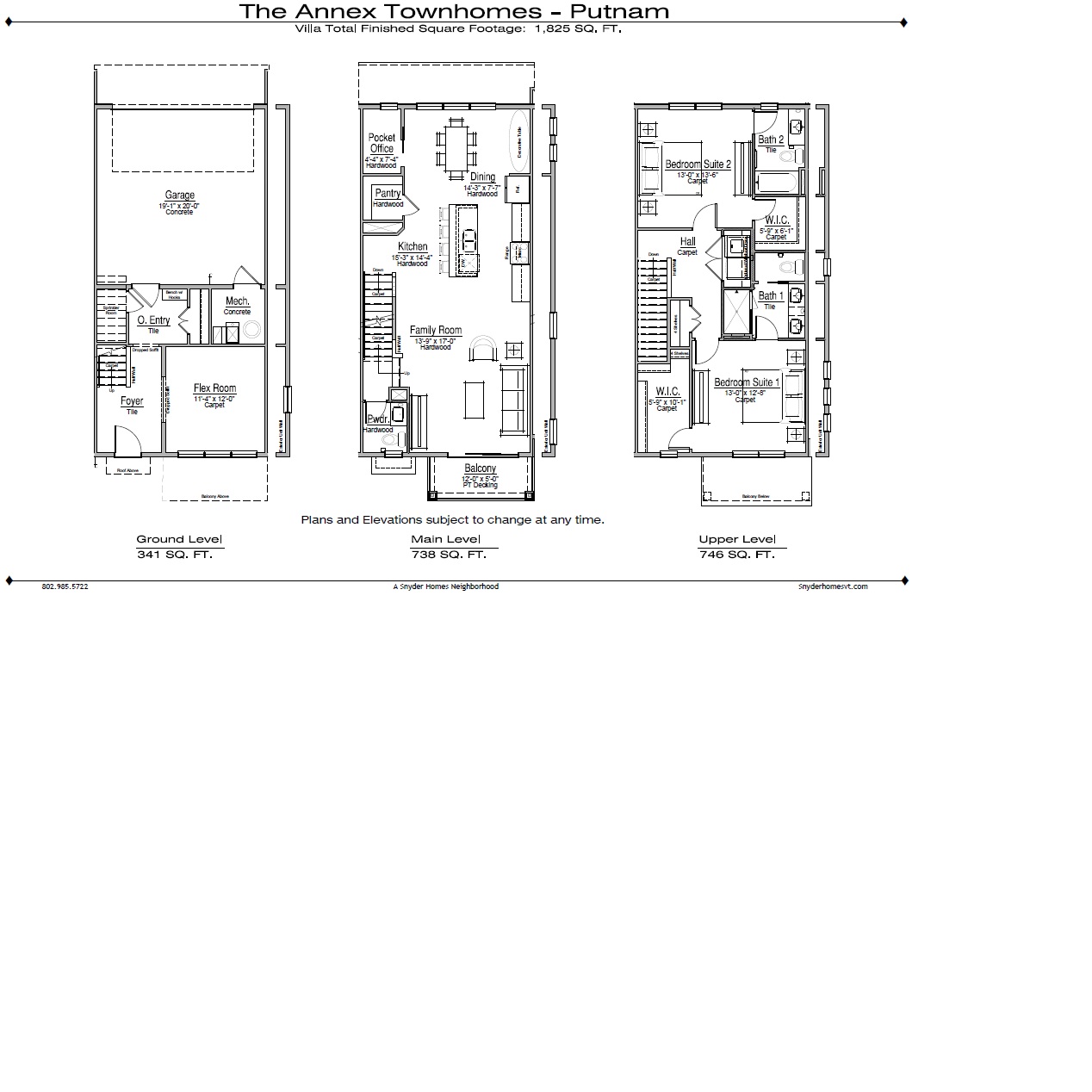
196 Alpine Drive
Williston, Vermont
2
Beds
2.5
Baths
1,825
Sqft
community: The Annex
Priced at $587,445
