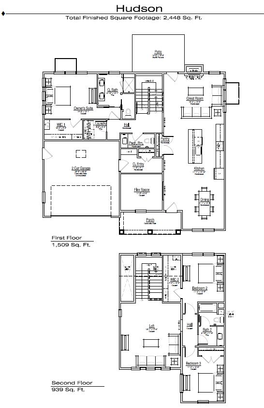
136 Elm Street
South Burlington, Vermont
3
Beds
2.5
Baths
2,448
Sqft
community: Spear Meadows
Plan: Hudson
Priced at $819,500
